Taşınabilir Pergel Vinç
Taşınabilir Pergel Vinç
Pergel vinçler içerisinde en maliyetli ve kullanışlı olan taşınabilir pergel vinç, forklift yardımı ile her yere taşınabiliyor ve kaldırma indirme işlemi yapabiliyor.
1 ton kapasiteye ve 3 metre kol uzunluğuna göre imalat yapılabiliyor.
Ürün mühendislik hesapları yapılması gerekiyor. Statik ve dinamik olarak hesaplamalar yapıldıktan sonra %50 ekstra yükte test ediliyor ve imalat süreci bu şekilde başlıyor. Dip kısımdaki ağırlık sistemi çelik bir kafes içerisine beton dökülerek yapılıyor.
Taşınabilir pergel vinçler, kaldırma ve taşıma işlemlerinde kullanılan pratik ve kullanışlı ekipmanlardır. Bu vinçler, inşaat sahaları, atölyeler, depolar ve daha birçok alanda çeşitli uygulamalarda kullanılır. Taşınabilir pergel vinçlerin çalışma prensipleri, avantajları ve kullanım alanları hakkında daha fazla bilgi vermek için bu makaleyi hazırladık.

Taşınabilir pergel vinçler, kullanım kolaylığı ve taşınabilirlik açısından önemli avantajlara sahiptir. İşte taşınabilir pergel vinçler hakkında bazı temel bilgiler:
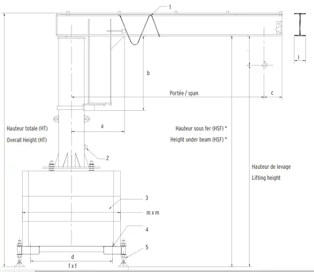
Çalışma Prensibi: Taşınabilir pergel vinçler, bir çift ayaklı destek sütunu ve üstlerinde hareket eden bir kirişten oluşur. Kiriş, yükün taşınmasını sağlayan bir vinç köprüsüdür. Vinç köprüsü, hareket edebilen tekerlekler veya raylar üzerinde yer alır. Pergel vinçler, yükü yatay olarak taşımak için kirişin hareket ettirilmesiyle çalışır.
Yük Kapasitesi: Taşınabilir pergel vinçlerin yük kapasiteleri genellikle küçük ve orta ölçekli yükler için uygundur. Genellikle birkaç yüz kilogramdan birkaç tona kadar taşıma kapasitesine sahiptirler. Yük kapasitesi, vinç modeline ve tasarımına bağlı olarak değişebilir.
Taşınabilirlik: Taşınabilir pergel vinçler, isminden de anlaşılacağı gibi taşınabilir ve hareket ettirilebilir yapıdadır. Genellikle tekerlekli veya paletli modeller olarak tasarlanırlar, bu da kolay taşınabilirlik ve yer değiştirme imkanı sağlar. İhtiyaç duyulan alana göre rahatlıkla taşınabilirler.
Kullanım Kolaylığı: Taşınabilir pergel vinçler, kullanıcı dostu tasarımlarıyla bilinir. Operatörlerin rahatlıkla kullanabileceği şekilde ergonomik kontroller ve düğmelerle donatılmıştır. Ayrıca, bazı modellerde uzaktan kumanda sistemi bulunur, bu da operatöre daha fazla kontrol ve hareket özgürlüğü sağlar.
Çeşitli Uygulamalar: Taşınabilir pergel vinçler, geniş bir kullanım alanına sahiptir. İnşaat sahalarında, atölyelerde, depolama alanlarında, limanlarda ve daha birçok endüstriyel alanda kullanılır. Malzemelerin kaldırılması, taşınması, yerleştirilmesi ve montaj işlemlerinde büyük kolaylık sağlarlar.
Güvenlik Özellikleri: Taşınabilir pergel vinçler, güvenlik önlemleriyle donatılmıştır. Bunlar arasında aşırı yük koruması, fren sistemleri, hız sınırlayıcıları ve acil durdurma düğmeleri yer alır. Bu özellikler, operatör ve çevre güvenliğini sağlamak için önemlidir.
Sonuç olarak, taşınabilir pergel vinçler, pratik ve kullanışlı kaldırma ekipmanlarıdır. Taşınabilirlikleri, kullanım kolaylıkları ve geniş kullanım alanlarıyla birçok sektörde tercih edilirler. Ancak, her kullanımda uygun güvenlik önlemlerine ve talimatlara uyulması önemlidir. Taşınabilir pergel vinçler, iş süreçlerini kolaylaştırırken aynı zamanda güvenli bir çalışma ortamı sağlar.




