Hafif Özel C Profil Pergel Vinç Sistemi
Hafif Özel C Profil Pergel Vinç Sistemi
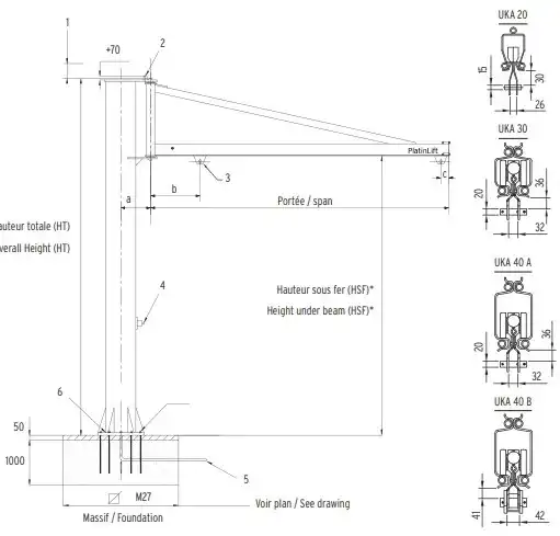
Hafif ve güvenilir yapısı ile BKB Pergel Vinç Sistemleri, caraskalların yürütme sistemini, direk olarak ray içerisinde yaparak, arabalara dışarıdan gelecek toz, nem, yağmur suyu, asit gibi bir çok dış etkenlerden korumaktadır.
Özel projelerde kullanılan bu vinç sistemi genellikle Alman menşeili firmalar tarafından ya da yerli imalat olarak tedarik edilebiliyor.
İstenilen kapasite ve ölçülerde imalatımız mevcuttur.







